自在经验网
首页
美食营养
游戏数码
知识问答
生活知识
返回
自在经验网
首页
美食营养
游戏数码
手工爱好
生活知识
健康养生
运动户外
职场理财
情感交际
母婴教育
时尚美容
知识问答
搜索
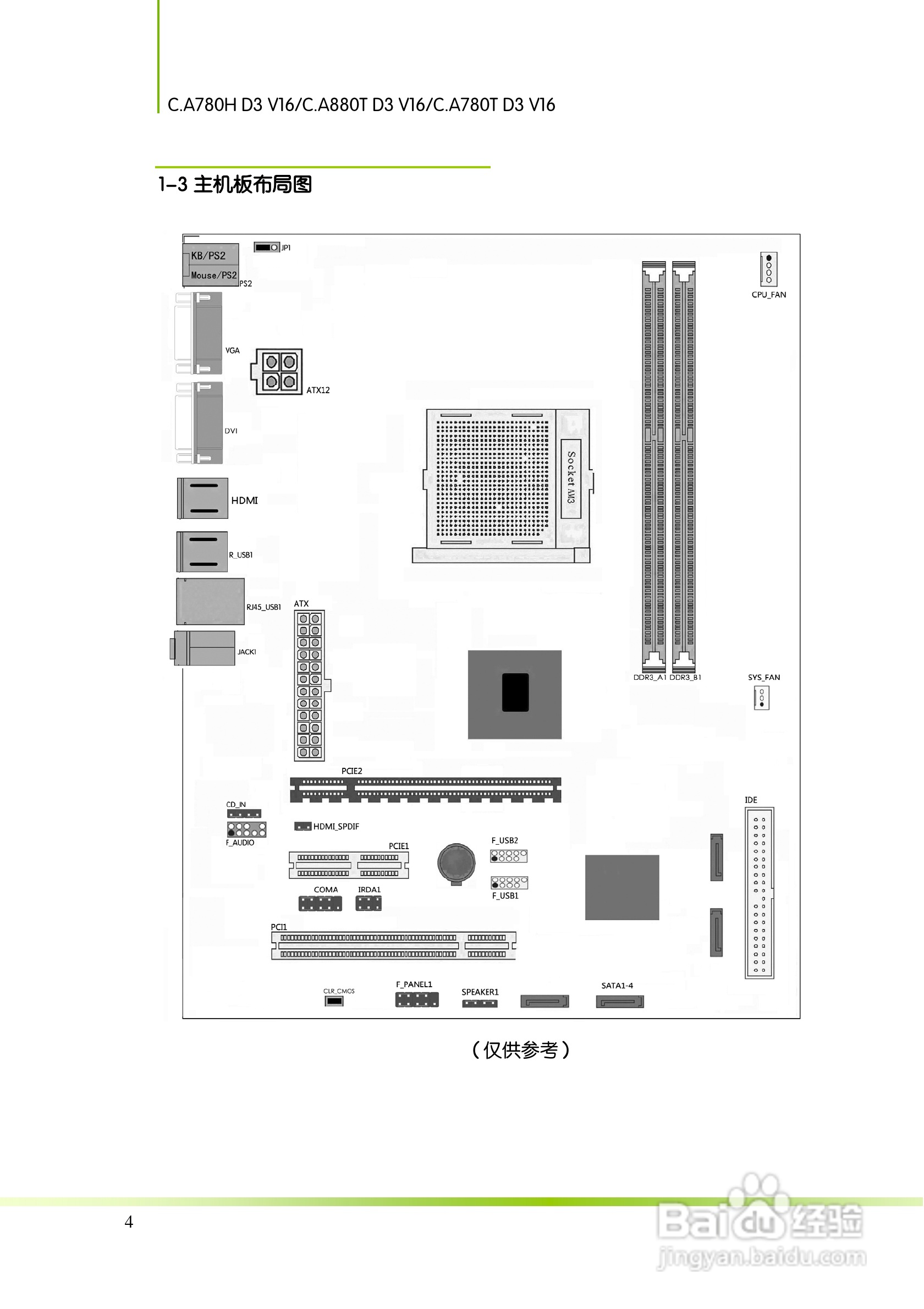
七彩虹ColorfulC.A880T D3 V16主板使用手册:[1]
2024-11-02 23:04:01
本篇为《七彩虹ColorfulC.A880T D3 V16主板使用手册》,主要介绍该产品的使用方法以及常见故障解决方案。
相关推荐
七彩虹主板怎么设置u盘启动
七彩虹ColorfulC.A780T D3 V16主板使用手册:[1]
七彩虹ColorfulC.A780T D3 V16主板使用手册:[2]
七彩虹ColorfulC.A780T D3 V16主板使用手册:[4]
七彩虹ColorfulC.A780T D3 V16主板使用手册:[5]
猜你喜欢
泄洪是什么意思
锦鲤鱼怎么分公母
三菱蓝瑟怎么样
李尖尖是什么电视剧
我的学习生活普通话三分钟
得力验钞机怎么升级
科技与生活手抄报
难忘的初中生活
完美生活
美图秀秀水印怎么做
猜你喜欢
如何穿衣打扮自己
除号怎么输入
如何提高心理素质
如何变得有气质
如何注册淘宝网店
湖南交通职业技术学院怎么样
如何取消彩铃
如何修改ip
拳皇97大蛇怎么调
u盘不读盘怎么办