CAD怎样绘制户型图
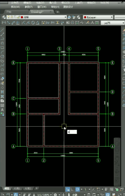
1、我们首先输入zxw,设置好房间和过道的长宽,然后修剪出各个房间。

2、然后我们使用快捷键azh快速标注,再使用快捷键xww设置墙体厚度240。

3、再使用adt快捷键绘制大门,使用快捷键wd绘制窗户,最后我们使用快捷键mj把面积测算出来,这样就完成了。

1、我们首先输入zxw,设置好房间和过道的长宽,然后修剪出各个房间。
2、然后我们使用快捷键azh快速标注,再使用快捷键xww设置墙体厚度240。
3、再使用adt快捷键绘制大门,使用快捷键wd绘制窗户,最后我们使用快捷键mj把面积测算出来,这样就完成了。