自在经验网
首页
美食营养
生活百科
知识问答
生活知识
返回
自在经验网
首页
美食营养
游戏数码
手工爱好
生活知识
生活百科
健康养生
运动户外
职场理财
情感交际
母婴教育
时尚美容
知识问答
更多知识
搜索
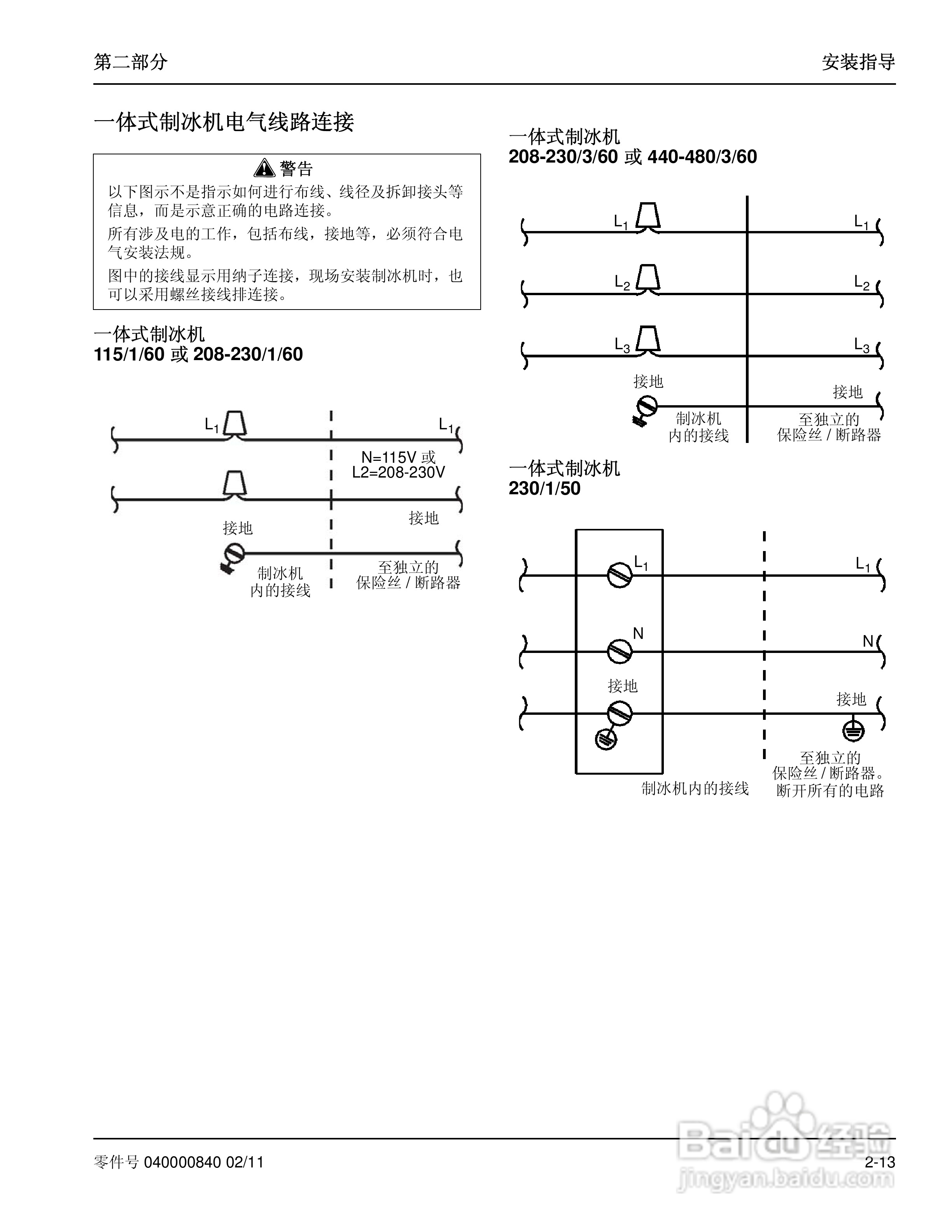
Manitowoc万利多SD1492N制冰机说明书:[3]
2026-02-16 01:41:05
/>
(共篇)
上一篇:
|
下一篇:
相关推荐
Manitowoc万利多SD1492N制冰机说明书:[1]
阅读量:190
Manitowoc万利多SD1892N制冰机说明书:[3]
阅读量:130
Manitowoc万利多SD1202A制冰机说明书:[3]
阅读量:103
Manitowoc万利多SD1602A制冰机说明书:[3]
阅读量:72
制冰机制冰慢怎么调节
阅读量:70
猜你喜欢
bean是什么意思
送给爸爸的祝福语
心智是什么意思
淘宝现在卖什么最火
血气方刚是什么意思
螃蟹不能与什么一起吃
酮替芬片主要治疗什么
落叶归根的意思
点解是什么意思
环球黑卡有什么用
猜你喜欢
淘宝店卖什么最赚钱
什么是具体行政行为
不耻下问是什么意思
药学是学什么的
过节送礼送什么好
冰天雪地的意思
比较有文采的新婚祝福
3g是什么意思
出处是什么意思
年逾古稀的意思