自在经验网
首页
美食营养
生活百科
知识问答
生活知识
返回
自在经验网
首页
美食营养
游戏数码
手工爱好
生活知识
生活百科
健康养生
运动户外
职场理财
情感交际
母婴教育
时尚美容
知识问答
更多知识
搜索
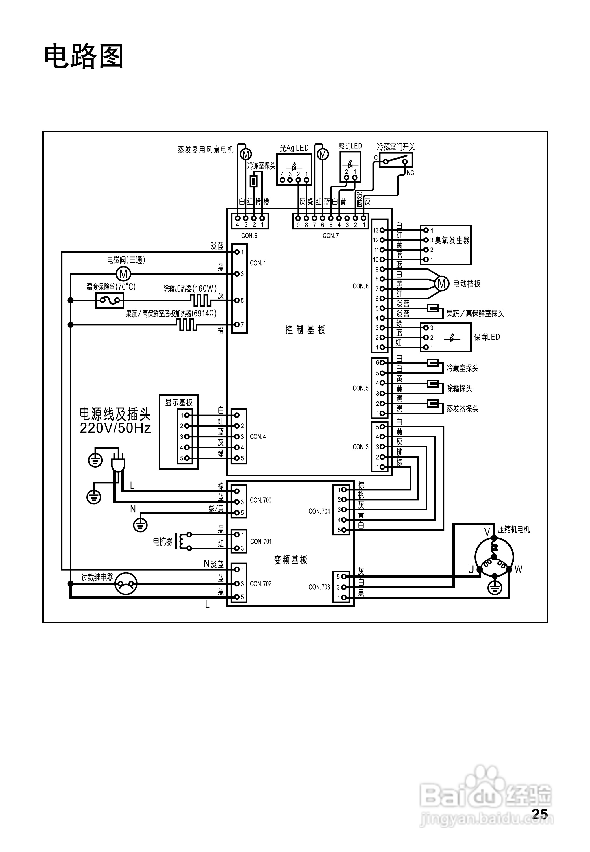
松下NR-C26FG1冰箱使用说明书:[3]
2026-02-14 13:46:06
(共篇)
上一篇:
相关推荐
车库快速卷帘门的安装
阅读量:162
空调制冷差的分析及处理方法
阅读量:160
三星BCD-268MMGR电冰箱使用说明书:[3]
阅读量:174
无盆无土花卉栽培
阅读量:63
Panasonic SV-SD350V/300随身听使用说明书:[4]
阅读量:21
猜你喜欢
炖排骨的做法大全
动物世界性行为大全
幼儿古诗大全300首
五星红旗图片大全
畏寒怕冷是怎么回事
睾丸胀痛是怎么回事
wps快捷键大全
wps表格怎么筛选
香水品牌大全
曾巩简介
猜你喜欢
网络用语大全
反三角函数公式大全
电视墙装修效果图大全
藏歌大全
手机启动不了怎么办
炖羊肉的做法大全
密码大全
路由器怎么升级
芥菜丝的腌制方法大全
催眠系列全集大全