在EPLAN里面添加通电延时闭合触点
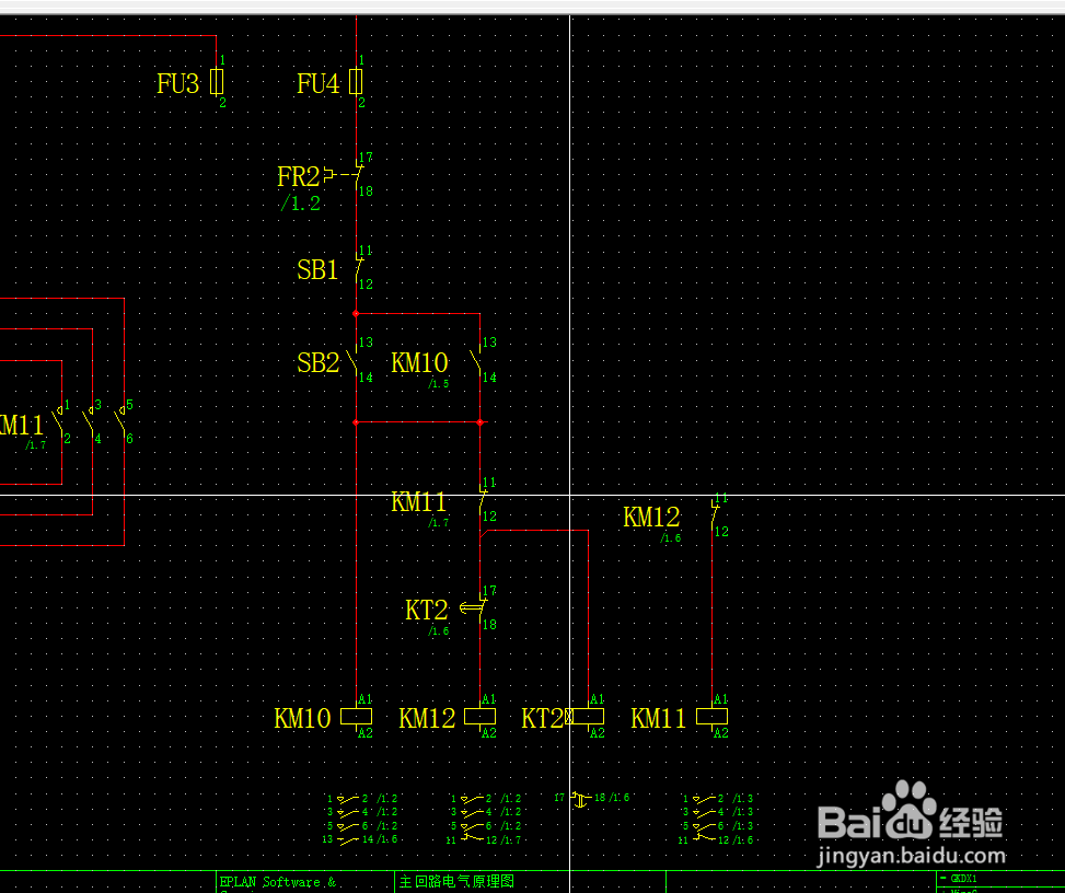
1、步骤一:打开前面设计好的电路图,如下图所示。

2、步骤二:首先添加需要的断电延时闭合的电气元器件符号,如下图所示。

3、步骤三:把步骤二添加的元器件符号的名称修改成自己需要的,如下图所示。

阅读量:107
阅读量:190
阅读量:74
阅读量:110
阅读量:24
1、步骤一:打开前面设计好的电路图,如下图所示。

2、步骤二:首先添加需要的断电延时闭合的电气元器件符号,如下图所示。

3、步骤三:把步骤二添加的元器件符号的名称修改成自己需要的,如下图所示。
